钢构cad是什么意思?

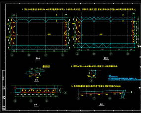
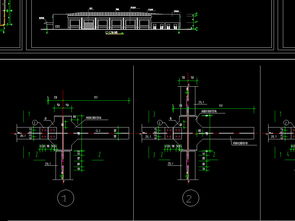
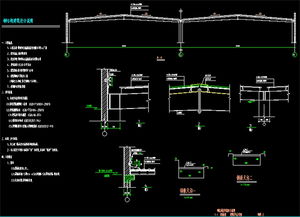
CAD钢结构实例教程 – 中国钢结构网架网 第一式:(常用三维指令认识)主要讲解一些常用三维指令的用法方式,其中包括UCS、指令、实体建模指令、实体编辑指令、三维运动指令(旋转、镜像、着色指令…..等等) 第二式:(空间概念实例)本章主要讲解UCS指令对于在三维空间里的运用,对于X、Y、Z的方向感,在三维空间,主要运用UCS来操作、控制所有三维指令。由而达到我们所需要的绘图结果。用了3个实例来操作及讲解,里面由直线建模、半球体建模、规则性椭圆体建模。是学习三维绘图必须具备的概念。 第三式:(普通实体框架实例)这一章开始介绍实体实例做法,如何用指令绘制土建实体,与现实尺寸一模一样,因而达到钢结构基本所需基础尺寸,而能开始绘制钢结构设计。用了一个实例,一步一步介绍如何用三维指令做出整个土建框架结构,完成在做所有钢结构设计之前所需的第一步绘图。 第四式:(轻钢厂房实例)开始介绍厂房制图方式,如何绘制H型钢、钢板、螺丝、螺母、打孔、裁切、并集、差集、镜像…等等,一步一步操作,一步一步组合成一间厂房。用三维指令简单操作介绍,这一阶段结合了前三阶段所有指令的运用。 第五式:(网架结构实例)用二个实例来介绍演示,一个是普通网架,一个是球体网架。主要讲述如何用线条建模,从而生成三维实体,此阶段的讲解包含了多个CAD指令运用,及经验累计、窍门,让你用最快捷又简单的方式做出网架及球体网壳。 第六式:(桁架结构实例)这一阶段用一个实例来演示介绍,主要内容:以线条建立一个三维空间角度变化、不规则弧形,来生成实体、裁切、实体差集,包含了前几阶段学习的溶合运用。为学习异形钢架准备思路。 第七式:(膜结构实例)这 一阶段开始了复杂结构的演示,里面讲解了不规则建模,实体直接操作,UCS所有转变,所有三维指令的运用,及经验、窍门的累计,用实例一步一步演示操作。 第八式:(完成图拆解实例)用实例演示如何标注,包括了完成图的三维标注、三维转平面标注(剖面、立面)各个角度视图标注。怎样把画好的完成图细分成节点图、施工图。如何套图框、打印的设定,把图用最漂亮的模式打印出来。 第九式:(异形结构实例)此阶段用了一个实例来演示,具体介绍了:把三维指令简单运用在不规则实体建模、生成,介绍指令交叉运用、多个指令同时融合运用,把复杂结构图用简单的操作方式来完成。这一阶段介绍的是把CAD里的所有指令发挥的淋漓尽致,达到高峰,可以做出各式各样形状的图纸
钢构CAD怎么启动

钢构CAD是加载到AUTOCAD中同步启动的。
第一步 :双击“钢构CAD安装程序”,将其文件安装到AutoCAD程序文件夹(如:D: \ Program Files\AutoCAD 2008) 内;
第二步 :安装程序自动激活运行AutoCAD程序(如未 自动 激活运行 AutoCAD 时,说明第一步中的 AutoCAD 程序文件夹未正确选择,此时可重新执行第一步),在命令行输入三个加号 +++ 后回车,此时出现“钢构CAD加载程序”界面(如未出现 “加载程序” 界面时,说明第一步中的 AutoCAD 程序文件夹未正确选择,此时可重新执行第一步),按提示即可完成。
1、本程序安装后,不会在桌面上产生专用的程序启动图标;
2、启动 AutoCAD 程序后,本程序所有功能均在其程序界面上并能自动加载运用;
钢构cad破解版

哪个版本的? 02 04 06 08 10 12 14?哪个版本的 还有 CAD 不分 钢构机械版本 你说的 可能是CAD的插件比如 清华天河 机械工程师 你要哪个? 更多追问追答 追问 软件名称就叫钢构CAD ,是CAD的插件 追答 不好意思,我没有 我有的是机械工程师 2010 追问 可以弯头放样吗 追答 我们 都用3D 放样的…3D 有个功能叫钣金 追问 1.0D 40.3°弯头 外直径530 壁厚6 可以帮我放个样吗。发CAD版放样图给我 本被网友采纳
钢构CAD怎么下载?

钢构CAD主要用于钣金展开等钢构辅助CAD画图,.程序主要系列程序包括:会画图的五金手册、钣金展开放样、画型钢杆件、土建部分、数据运算、体面积计算、CAD画图及自动优化设置等等通用程序等。 追问 怎么办才能下载
钢构cad哪个版本好

摘要 这个要看你用的其他辅助设计软件支持到哪个版本的CAD了,从大前提来说用32位的软件兼容性比较好,其次现在的结构设计辅助软件的接口比如PKPM、探索者、广厦,还有CAD插件比如天正结构一般都支持到2008版的CAD了,至于CAD版本现在一般都用2008版的,不过2004版的也可以,这个要看你的需要了 咨询记录 · 于2021-11-17 钢构cad哪个版本好 亲,这道题由我来为您解答,很高兴为您解答,但打字需要一点的时间呢,所以还请您耐心等待一下,谢谢您的配合哟 这个要看你用的其他辅助设计软件支持到哪个版本的CAD了,从大前提来说用32位的软件兼容性比较好,其次现在的结构设计辅助软件的接口比如PKPM、探索者、广厦,还有CAD插件比如天正结构一般都支持到2008版的CAD了,至于CAD版本现在一般都用2008版的,不过2004版的也可以,这个要看你的需要了
原创文章,作者:聚禄鼎,如若转载,请注明出处:https://www.xxso.cn/79960.html