楼梯剖面图?

越来越多的人钟爱楼中楼,复式、跃层房型的房子,这一类房型可以为业主提供更加宽敞的生活空间,大家都知道这样的房屋需要楼梯相连,目前市面上有螺旋楼梯、旋转楼梯,伸缩楼梯,折线楼梯等多种多样的楼梯风格供人们选择,接下来小编就为大家介绍一下楼梯剖面图效果赏析和楼梯选购的注意事项的相关信息吧。 楼梯剖面图效果赏析 图中是一款玻璃材质的楼梯,款式非常时尚,玻璃楼梯具体有很好的透光性,使得客厅空间显得更加宽敞、明亮。不锈钢材质的楼梯扶手非常有质感,再在楼梯转角的位置摆放一盆鲜艳的绿植,整个楼梯空间也变得生动了起来。 楼梯剖面图效果赏析 图中这是一款现代风的居所,主人打造了螺旋形的楼梯,这种款式的楼梯非常适合小面积的居所,它既可以节省室内空间,而且非常具有立体感,尽显创意和时尚。白色的楼梯扶手搭配淡雅的墙面,咸淡适宜,成为了家中一道美丽的风景。 楼梯剖面图效果赏析 图中是一款简欧风的居所,房主人在楼梯下方打造了很多大小不同的柜子,可以收纳室内暂时不用的物品,有效的保证了室内的整洁性。白色的收纳柜搭配上深色木质的楼梯和木质的地板,对比强烈,非常具有现代感。 楼梯剖面图效果赏析 楼梯剖面图效果有哪些图中是一款现代风的楼中楼,主人采用了黑白两色来装饰,显得简洁又不失时尚感。主人选用了铁片来打造楼梯,白色的楼梯造型薄如纸片,却能给空间营造轻盈感。楼梯的扶手并没有过多的装饰,只是几根刷上白色油漆的铁栏杆,楼梯左右两侧视觉穿透感极强,没有任何阻挡。家装的格调不同,其楼梯的材质和样式也各不相同。 楼梯剖面图效果赏析 图中是一款中式风的大厅,主人选用了深色实木来打造楼梯,楼梯的色彩和室内的木门、地板的颜色相一致,达到完美协调的效果。实木材质的楼梯散发着木质的温润感,十分的温馨。 楼梯选购的注意事项 1、选购楼梯思想要重视。楼梯在整个装潢过程中,是最特殊、最重要的环节之一,一定要找本地的专业厂家。如果认为楼梯没什么大不了,只要能走就可以那就错了。 2、楼梯设计很要紧。楼梯是一件功能家具,不光要与整个装修风格搭配和协调,还要考虑实用性、安全性,如家里常有老人小孩的话,就要避免采用玻璃、铁艺楼梯。 3、注意环保。除了主材外,还要了解产品所用的胶水、油漆,其生产工序是否环保,不要让楼梯挥发出对人体有害的物质。 4、家庭楼梯尺寸 国家标准,公共楼梯的踏步的高度为:160-170mm,常见的家中的水泥基座楼梯就是按这样的标准,较舒适的高度为160mm左右。按目前的市场出售的家庭用的成品楼梯的情况来看,高度一般在170-210MM,180MM左右是最经济适用的选择;同一楼梯的各个梯段,其踏步的高度、宽度尺寸应该是相同的,尺寸不应有无规律的变化,以保证坡度与步幅关系恒定。
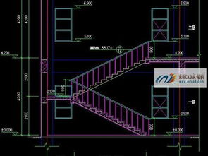
楼梯怎样在平面图中看剖面图的尺寸

楼梯间的平面图上,X、Y两个方向的详细尺寸及梯段上、下的标高都标注得清清楚楚,只需看到踏步高及配筋就解决,不看剖面图都知道。你想在平面图中看剖面图,重要的是找到轴线,脑子里清楚的定好位置,就一 一对应出来了。 本被网友采纳
楼梯剖面图怎么画

以双跑楼梯为例。
-
输入SPLT
-
设定好需要的参数:层高,踏步高,踏步宽之类的
-
已经出了一个双跑楼梯了(平面的)
-
要生成剖面图,
-
输入PQFH(剖切符号);
-
在需要画剖面的楼梯(就是剖开的面)画一个剖切符号;(根据提示栏进行操作,例如剖切符号的编号)
-
输入GJPM(构建剖面);
选择刚刚的那个剖切符号→选择需要剖切的构建(就选你刚生成的楼梯)
楼梯的剖面图怎么看

首先你的知道楼梯的构成,组要包括以下几种
1楼梯井
2楼梯
3休息平台
4;楼梯的护栏
再就是有关 楼梯的计算知识了,比如说一般楼梯在数个数的时候应该从第一个数到休息平台向内延伸300毫米;楼梯井在500毫米范围可忽略不计。;楼梯工程量按楼梯的水平投影面积计算。楼梯的基本尺寸为H150宽300就可以了,知道这些就可以很清楚的看楼梯了 本被提问者和网友采纳
cad如何绘制楼梯剖面图

首先双击打开电脑上的cad,然后点击界面上方栏目中的“标注”
然后选择下拉框中的“标注样式”
然后在“标注样式管理器”里面点击“修改”
在修改标注样式里面点击“主单位”
这时我们可以看到中间部分由“比例因子”这一栏,cad默认的比例因子就是1,也就是我们画的线段长度就是我们标注的长度。这里我们把比例因子修改成“2”.点击下方的“确定”
确定后就会弹回到之前的界面,这时我们点击“置为当前”,然后点击“关闭”,就已经修改好比例了
原创文章,作者:聚禄鼎,如若转载,请注明出处:https://www.xxso.cn/55854.html